自吸泵是自吸式離心泵的一種分類,自吸離心泵具有結構緊湊、運行時間長、壽命長、效率高、維護容易等特點。管路無需安裝底閥,工作前需要確保泵體內留有一定的引液就行。下面講解自吸泵安裝圖和用法。
	 
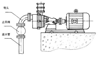
自吸泵安裝圖
	為了確保自吸泵處于良好的工作狀態,需要正確進行自吸泵的安裝。
	1.自吸離心泵機組應該使用二次灌漿法進行安裝,按照自吸泵和電機的安裝尺寸,把自吸泵直接安裝到基礎上。安裝完成后機組的中心線應該和基礎中心線保持一致。機組的中心標高與設計值的偏差值不應該大于規定值,機組的水平允許誤差值為萬分之一。
	將鋼尺放在聯軸器上,查看自吸泵軸心線和電機中心線是否重合,假如沒有重合就在電機底角下墊上薄鐵皮,可以使電機聯軸器和鋼板尺寸相同。為了查看安裝精度在幾個不同的位置上用塞尺測量聯軸器的軸向間隙,較大誤差應該不能大于規定值。和電機中心線上下左右的誤差不能大于規定值。
	2.管路與閥門的重量不能有自吸泵來承擔,建議可以考慮分別支撐。
	3.自吸泵和電機應該安裝在牢固的基礎上,不應該增加軟墊來承受自吸泵的全部重量。可以使用水平儀查看機組的水平度,找平后把地腳螺栓均勻的擰緊。可以用水泥澆灌泵座和地腳螺栓孔,等到水泥干固后再檢查一下水平度。
	 
自吸泵的用法
1.自吸泵啟動前的準備工作
	(1)需要清除自吸泵吸水池中的所有雜物,比如磚頭、纖維用品、木塊、金屬絲等等。在自吸泵運行過程中,應該有措施來避免新的雜物進入自吸泵吸水池中。
	(2)查看電機轉向,從電機方向看,葉輪是逆時針方向旋轉。機組冷卻潤滑系統需要在自吸泵啟動前向機組供水。
	(3)保證自吸泵吸水池中的水位在允許的水位之上,假如小于規定值,高吸程自吸泵運行過程中可能會產生旋渦把空氣帶到泵中,因閥機組振動與汽蝕,這時應該增加自吸泵的淹沒深度。
	(4)安裝好出口壓力表可以檢測系統阻力,在一般情況下根據系統的變化,需要用閥門調節流量與壓力。為了保證安裝與滿意的運行效果在開車前應該進行水錘分析。
	(5)查看填料的壓緊程度,不能過緊或者過松,需要注意填料壓蓋是否壓得均勻。
2.自吸泵使用方法和啟動步驟
	(1)自吸泵在真空狀態下一定不能啟動。停車后管路系統產生回流,化工自吸泵在泵內會引起真空,在自吸泵重新啟動前要有足夠的時間與措施,能讓空氣順利進入泵內。
	(2)滿足上面的要求后,可以按照以下順序啟動機組。排氣閥一直處于工作狀態,主泵可以啟動。
	(3)使用一個雙速電動閥門,自吸泵與閥門可以同時啟動,閥門在15秒內全部打開。
	(4)自吸泵啟動與運行時應該考慮避免水錘現象的發生。為了確保安全與運行效果滿意,不同管路裝置使用不同的啟動方法。
	自吸泵安裝圖和用法由水泵廠家總結。推薦閱讀:自吸泵吸程可達多少米?


 D型不銹鋼多級臥式離心泵
D型不銹鋼多級臥式離心泵 102型、103型、104型、105型塑料離心泵
102型、103型、104型、105型塑料離心泵 FS型玻璃鋼離心泵
FS型玻璃鋼離心泵
